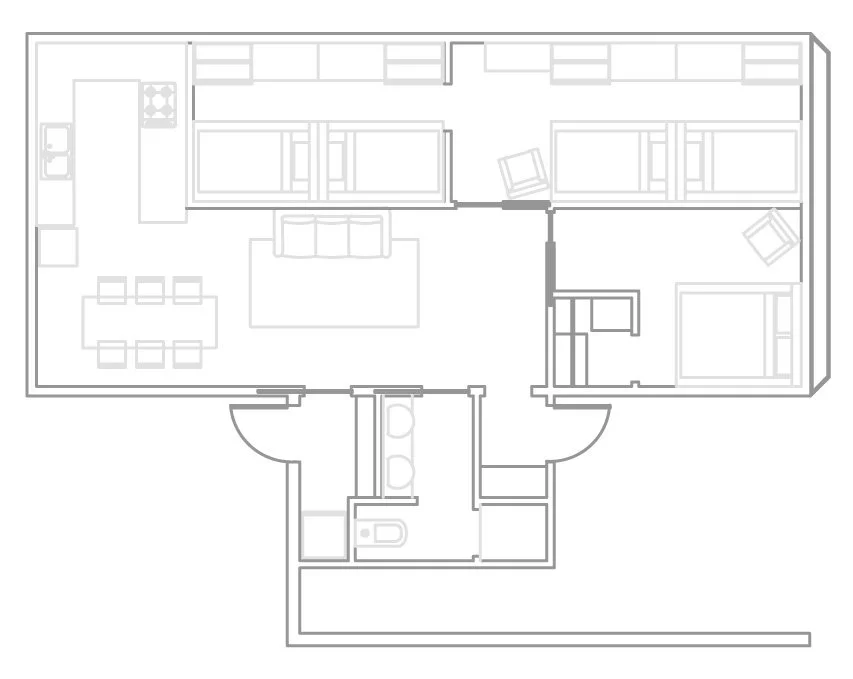
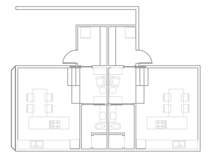
Let them Shine Housing for freshly immigrants with young children. Let them Shine | Housing for a young immigrant children